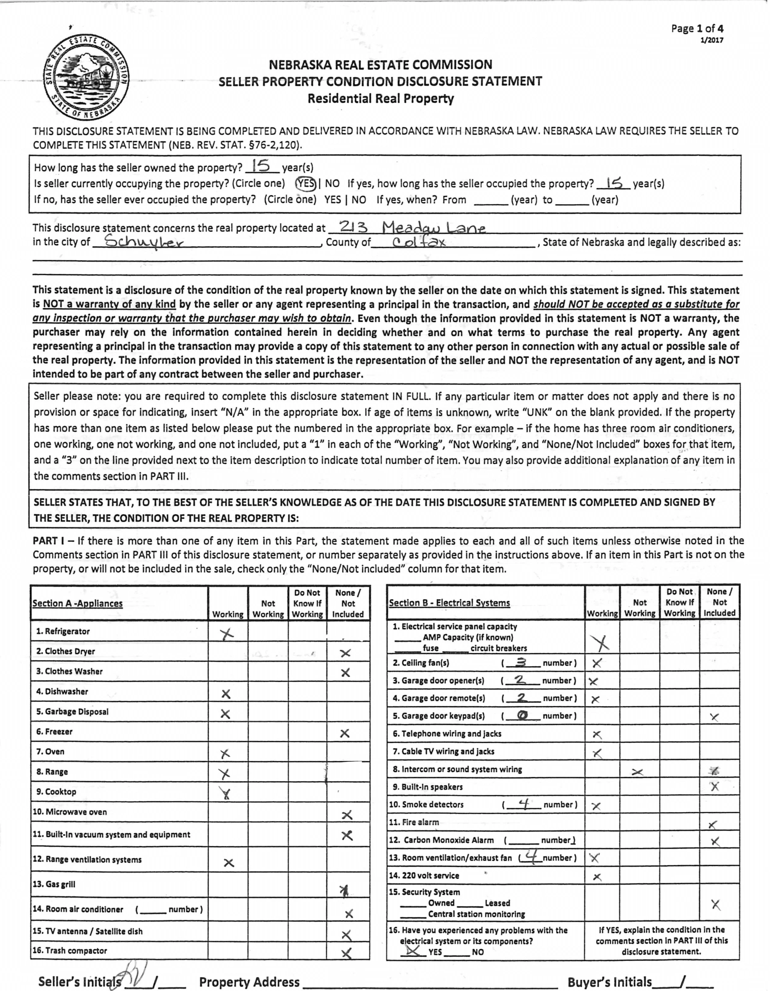
213 Meadow Ln, Schuyler "SOLD"
/$135,000.00 I 0.25 ACRES I 213 Meadow Ln, Schuyler
Property Documents & Maps
This home is got the usable space for a large family. It has three bedrooms on the main floor and more rooms down stairs with a large family room. Nice sized yard and this is a must see to appreciate it’s space. Give one of our agents a call today to see it!
PROPERTY HIGHLIGHTS
Three ++ Bedrooms
Finished Basement
Legal: Lot 6, Block C Parkview Addition to the city of Schuyler
Taxes: $2,190.16 (2016)
