Folken Family LAND AUCTION: 159.16 Acre Colfax Co. Improved Irrigated Farm

Land Auction February 22, 2019 at 10:00 am

at the K of C Hall, 1013 C ST, Downtown Schuyler

159.16 Acres | Colfax County, NE

OPEN HOUSE DATES

  • January 27,2019 - 1 pm to 3 pm

  • Anytime by appointment

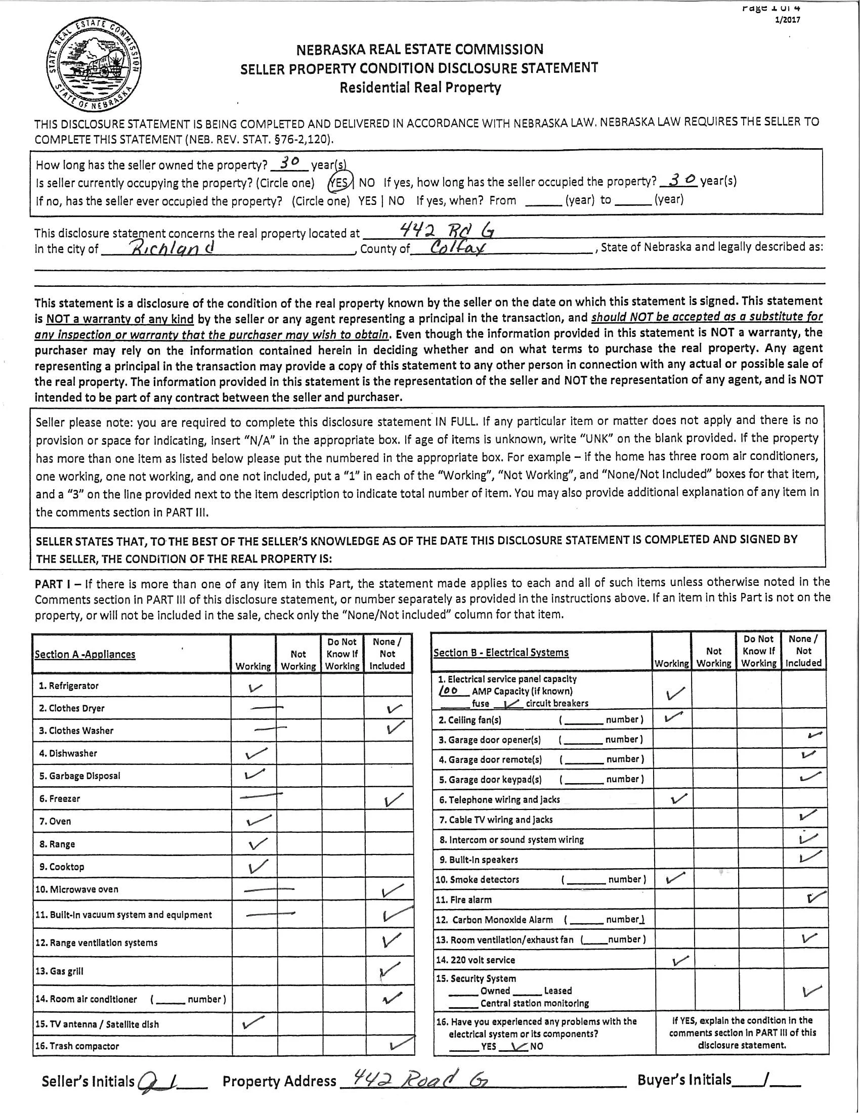
PROPERTY DESCRIPTION

Offered for sale is highly productive irrigated 160 acres that features three pivots and a building site.  The building site consists of a 1985 three bedroom home with hand make kitchen cabinets, title floors, and number of outbuildings and two grain bins.  The farm is irrigated by one well that is connected to four pivot pads via underground pipe.  This is a complete operation.

LOCATION:

Seven miles West & two miles North of Schuyler, or Two miles East & 3 miles North of Richland. 1/4 mile East of County Road Intersection (4, G)

PROPERTY HIGHLIGHTS

  • Nice three bedroom home and building site.

  • Three pivots

  • Highly Productive cropland

  • Gently Rolling

Land Data

  • LAND: 159.16 +/- acres: 154.31 acres Cropland and 2.87 acre building site.

  • FSA: 156.54Crop acres Corn xxx acres xxx Bushel Corn yield, Soybean xxx acres xx Bushel yield . Verified after government shout down

  • TAXES: 2018 taxes = $ 15,058.98

Auction Terms

  • 20% Down payment on day of auction with signing a purchase agreement. Balance due on or before April 5, 2019.

  • Subject to 2019 Cash rent lease.

  • Full possession March 1, 2020.

  • Warranty Deed to be furnished by Seller.

  • To be sold subject to 2019 crop lease, and free and clear of all other encumbrances

  • The Seller to pay the 2018 taxes.

  • The Buyer to receive the 2019 rent.

  • Title Insurance with the cost of the owners policy to be shared equally between Buyer and Seller.

  • All Farm Service Agency (FSA) data is believed to be reliable. The seller does not warranty any final base determinations.

  • The sale is not subject to the Buyer’s ability to obtain financing.

  • The Seller will not be providing a survey of the property.

  • The Buyer to sign a purchase agreement at the conclusion of the auction.

 

Property Maps & Documents

GALLERY

soldSage Merritt