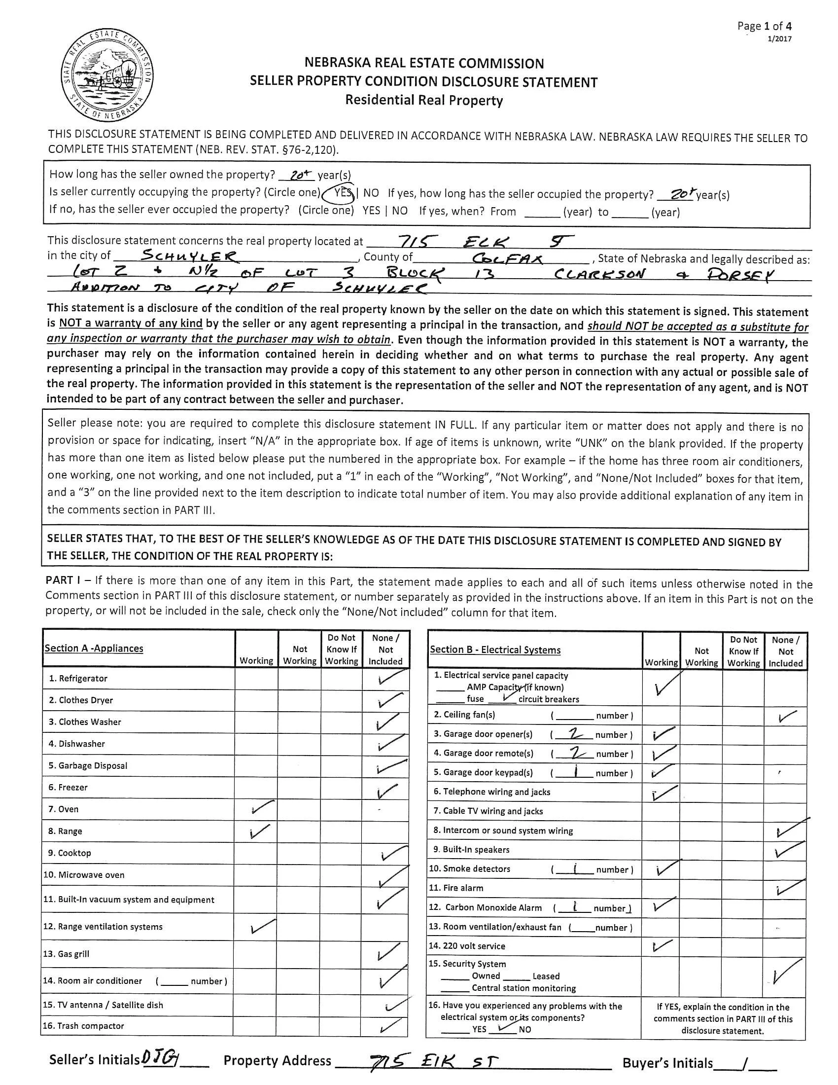
715 ElK ST - Schuyler

Sale Pending Banner Large 715 Elk.jpg

Sale Pending! | Listing Price $ 124,000.00 | Schuyler


Maps & Documents

Description:

This is a nice clean home with everything on one level.  Features two bedrooms, sunroom, large enclosed breezeway, covered patio, and a large two car garage.  Make plans today to look at this beautiful home.  Call agent Chris Langemeier at 402-352-2494 today.

The house is NOT in the flood plain.

Features:

  • Two Bedrooms

  • One Bathroom

  • Two Car Garage

  • Newer Windows

  • Lawn Sprinklers

  • Shed

Taxes: $ 1,343.66

Gallery

soldSage Merritt