715 Colfax ST - Schuyler


SOLD! | Listing Price $ 139,000.00 | Schuyler


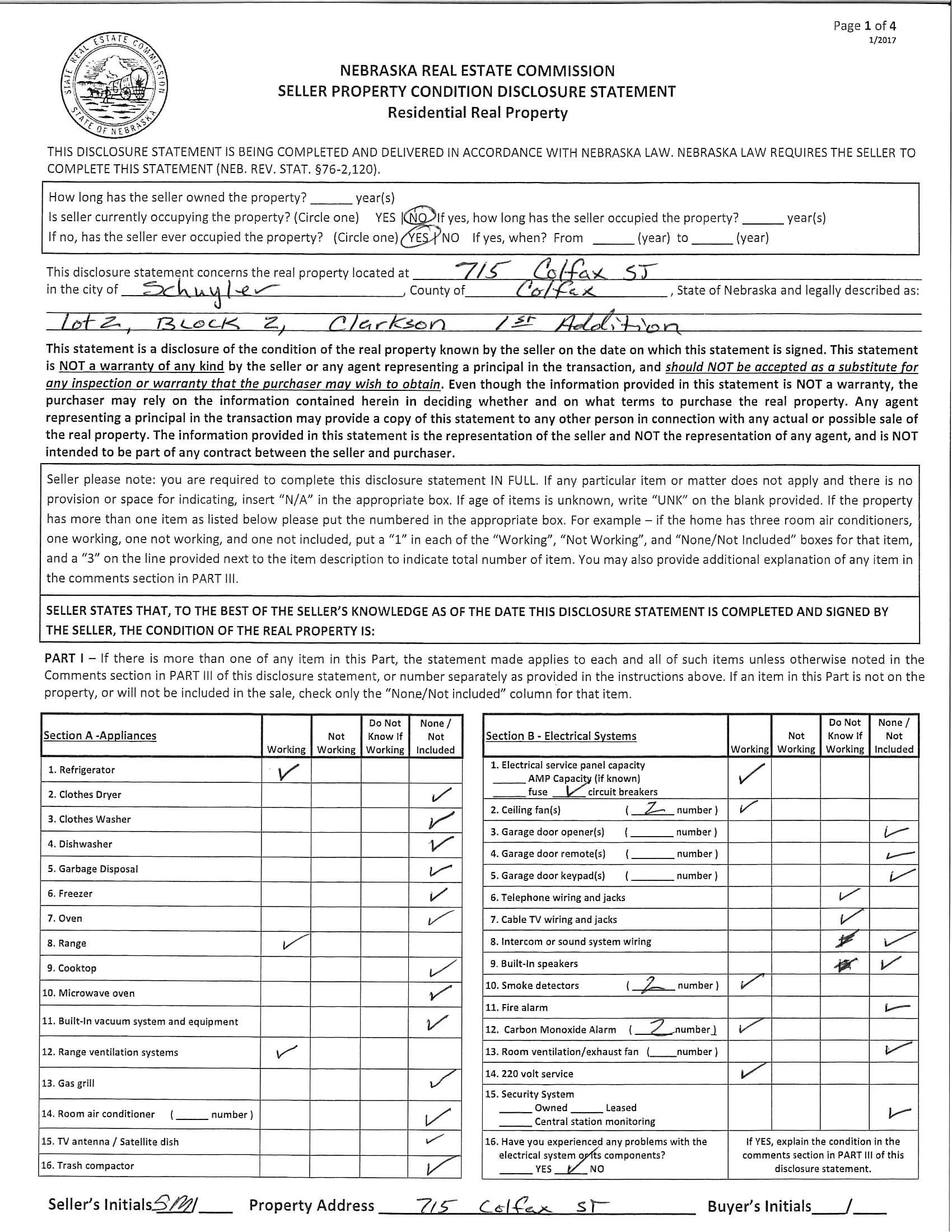
Maps & Documents

Description:

Wow! 5 Bedrooms in this a well-maintained house.  With new windows and floor coverings make this home look like new.  If you are looking for space, you will want to look at this house. 

The house is in the flood plain.

Features:

  • Five Bedrooms

  • New Windows

  • New Flooring

Taxes: Projected $1,309.68

Gallery

soldSage Merritt