709 Elk ST - Schuyler


SOLD! | Listing Price $212,595.00 | Schuyler


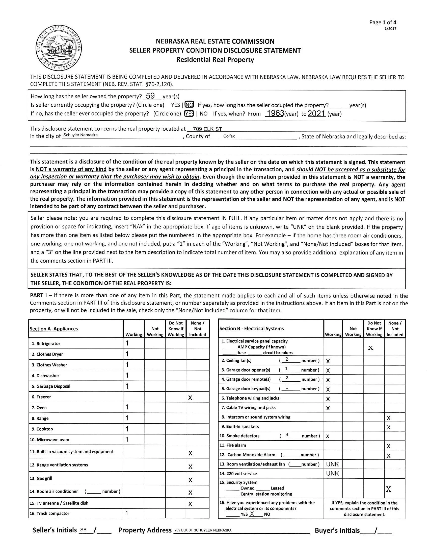
Maps & Documents

Description:

This is a great little starter home. If has three bedrooms, two bath, basement, updated kitchen, fenced yard and more. Call listing agent Rose Mundil at 402-615-0933 today.

The house is not in the flood plain.

Features:

  • Three Bedrooms

  • Two + Bathrooms

  • No Flood Plain

Taxes: $ 2,950.00

Gallery

soldSage Merritt