620 W 7th ST - Schuyler


SOLD! | Listing Price $ 265,000.00 | Schuyler


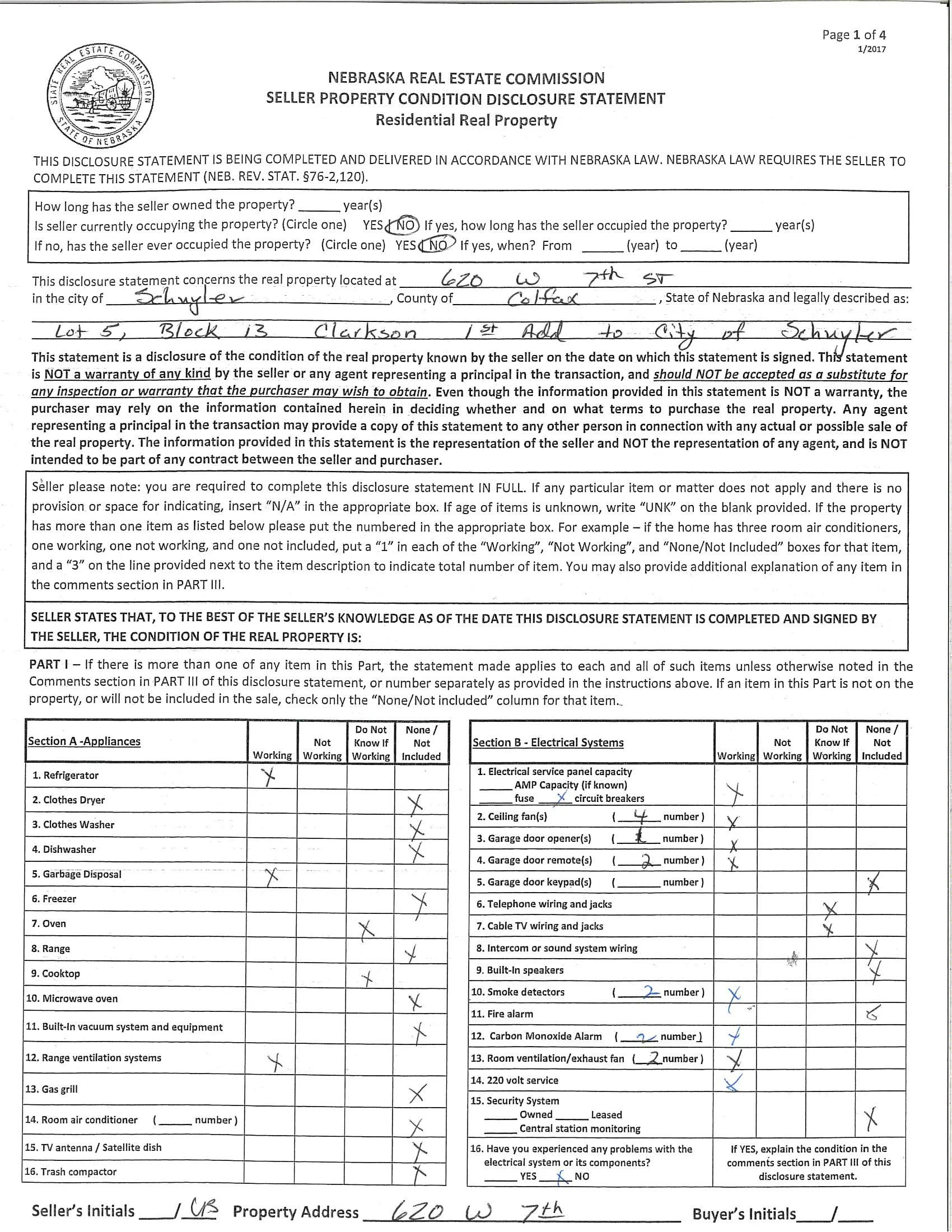
Maps & Documents

Description:

This property is a all brick home sitting on corner lot giving it access to the entire yard on three sides. The yard has a place for a large garden and lawn sprinklers.

The ranch floor plan has three bedrooms, a master bath, main bath and laundry all the first floor. The kitchen has lots of counter space with flow to the dining area, basement and garage. The basement is partially finished and has a bathroom and laundry area as well. The property is not located in the FEMA flood zone. Call listing agent Chris Langemeier at 402-352-2494 today.

The house is NOT in the flood plain.

Features:

  • Three Bedrooms

  • Full basement

  • Lawn sprinklers

  • Two+ Car Garage

  • Main Floor Laundry

2024 Taxes: $ 2,102.16

Gallery

soldSage Merritt