517 East 12th St - Schuyler


SOLD! | Listing Price $65,000.00 | Schuyler


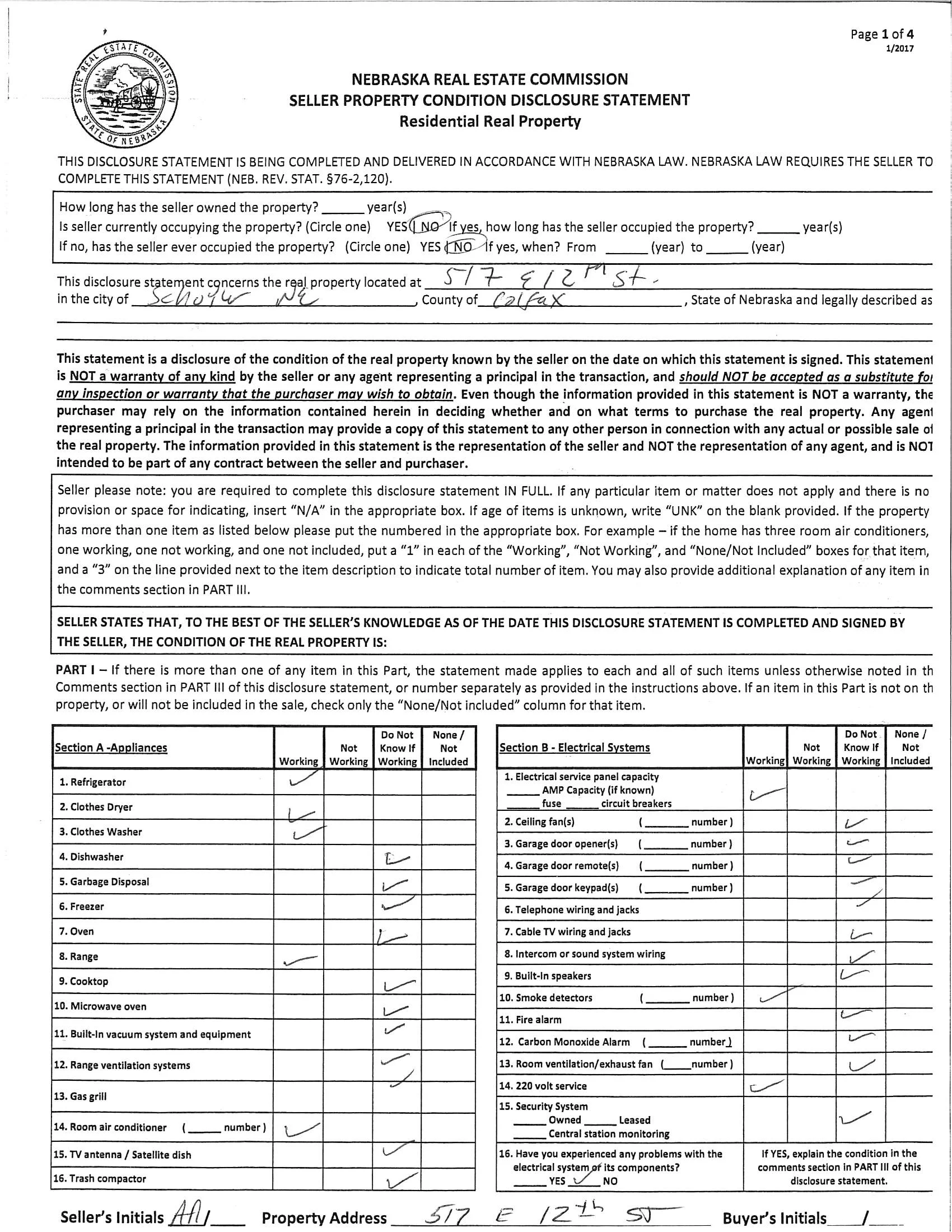
Maps & Documents

Description:

This three-bedroom two story with lots of room is ready for you to move into.  It has wood floors and new apliances.

The house is in the flood plain.

Features:

  • Three Bedrooms

  • Updated Bathroom

  • Is in the flood plain

Taxes: $869.30

Gallery

soldSage Merritt