703 Banner ST - Schuyler


New Listing! | Listing Price $ 159,000.00 | Schuyler


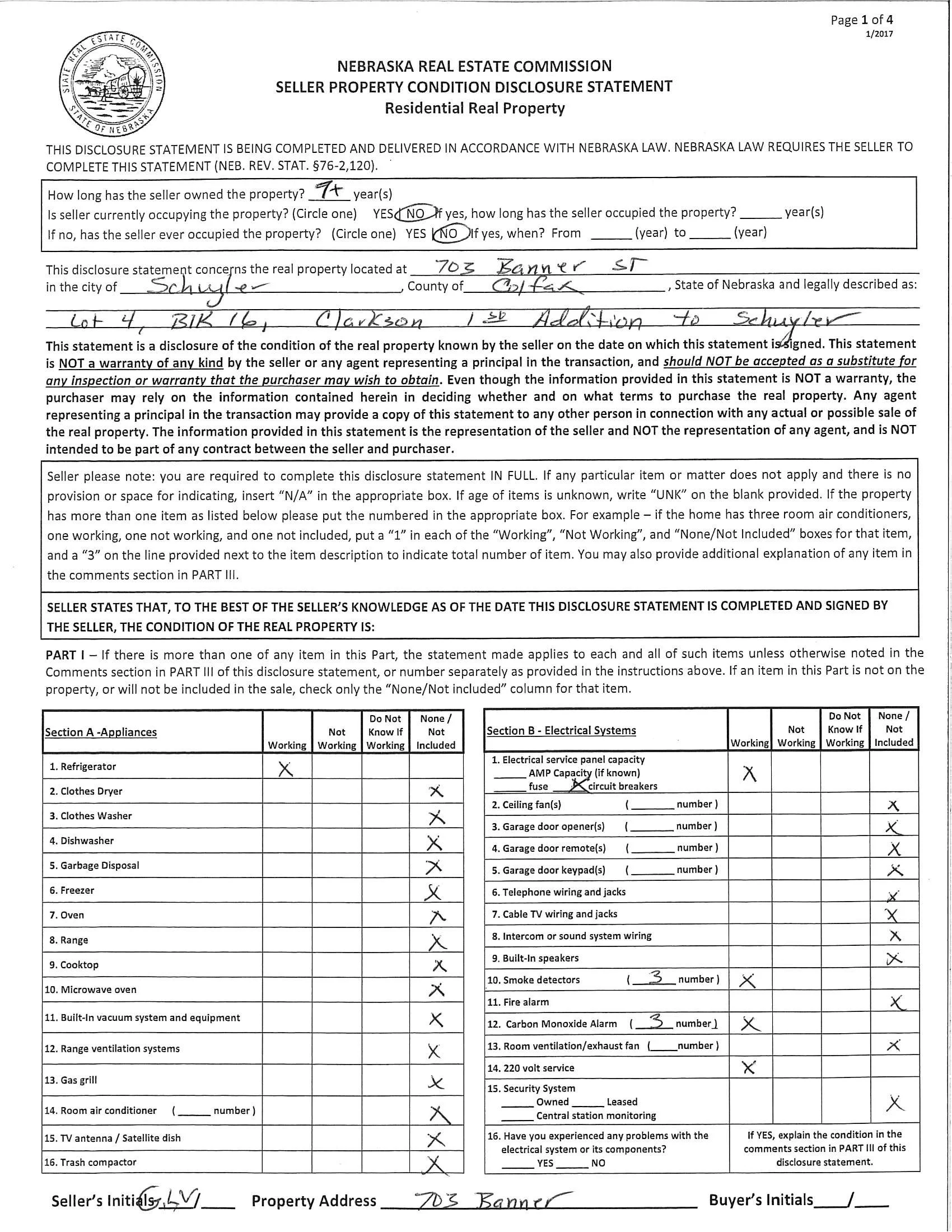
Maps & Documents

Description:

This home is a newly remodeled four bed room home that is ready to move in.

The house is in the flood plain.

Features:

  • Four Bedrooms

  • Basement

  • New Furnace

  • One car storage

  • 2022 Taxes: $ 835.18

Gallery

soldSage Merrittresidental