513 E 12th ST - Schuyler


SOLD! | Listing Price $ 92,500.00 | Schuyler


Maps & Documents

Description:

Tired of renting? This might be just what you need. Three bedrooms, newer furnace with central air. Check out all this house has to offer and see if it fits your needs!. Call listing agent Chris Langemeier 302-615-3400 today.

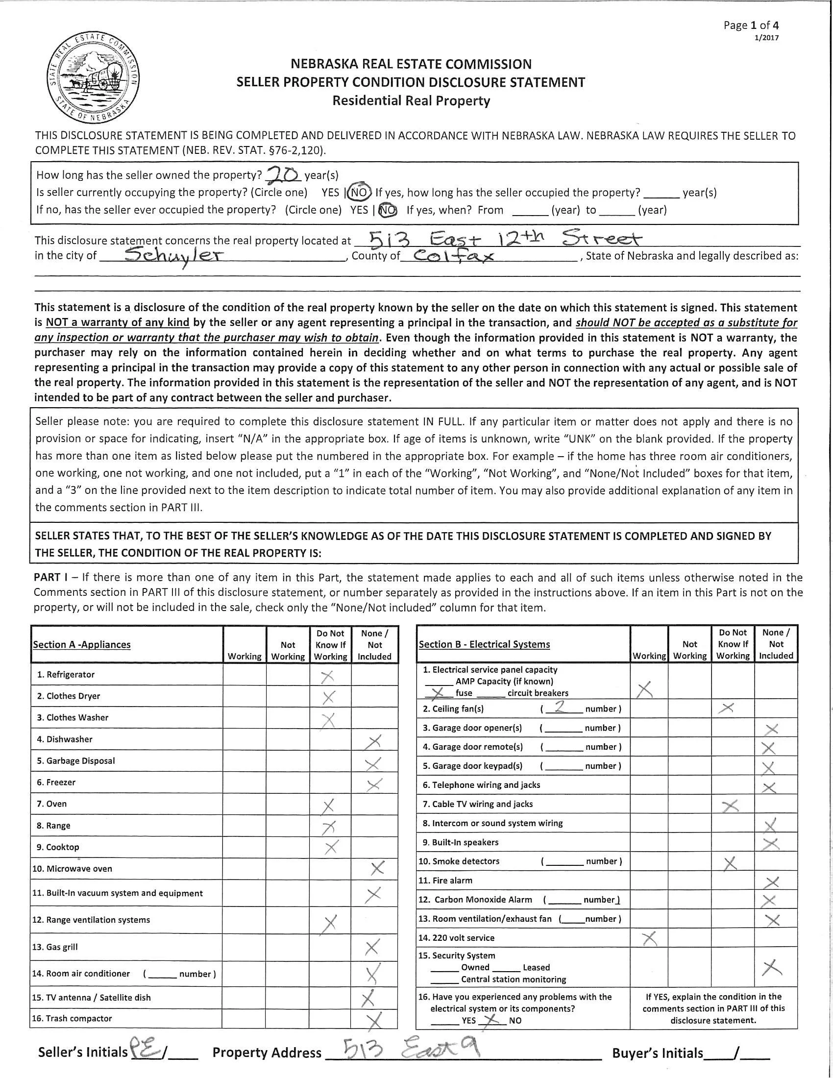
The house is in the flood plain.

Features:

  • Three Bedrooms

  • One Bath

  • Flood Plain - Yes

Taxes: $ 730.38

Gallery

soldSage Merritt