401 West 20nd ST - Schuyler


Sale Pending! | Listing Price $ 195,000.00 | Schuyler


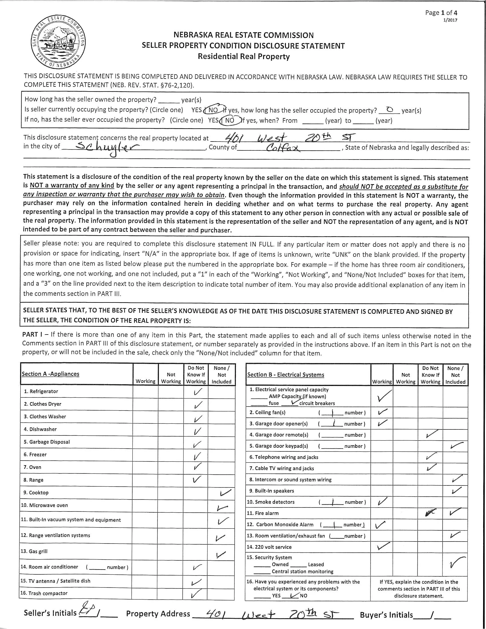
Maps & Documents

Description:

This is a clean four-bedroom home with a finished basement that would make a great home for years to come.  The large lot give you so many backyard parties or kids playground.  This quality home will not  last long.

The house is not in the flood plain.

Features:

  • Four Bedrooms

  • Two Bathrooms

  • Full Basement

  • NOT in the flood plain

Taxes: Projected $

Gallery

soldSage Merritt