LAND AUCTION Tract 2 - 39 Acres Colfax County Irrigated Farm

SOLD! $6,500.00  Land Auction January 19 at 10:00 am

At the Knights of Columbus Hall downtown Schuyler

39 Acres | Colfax County, NE

Property Maps & Documents

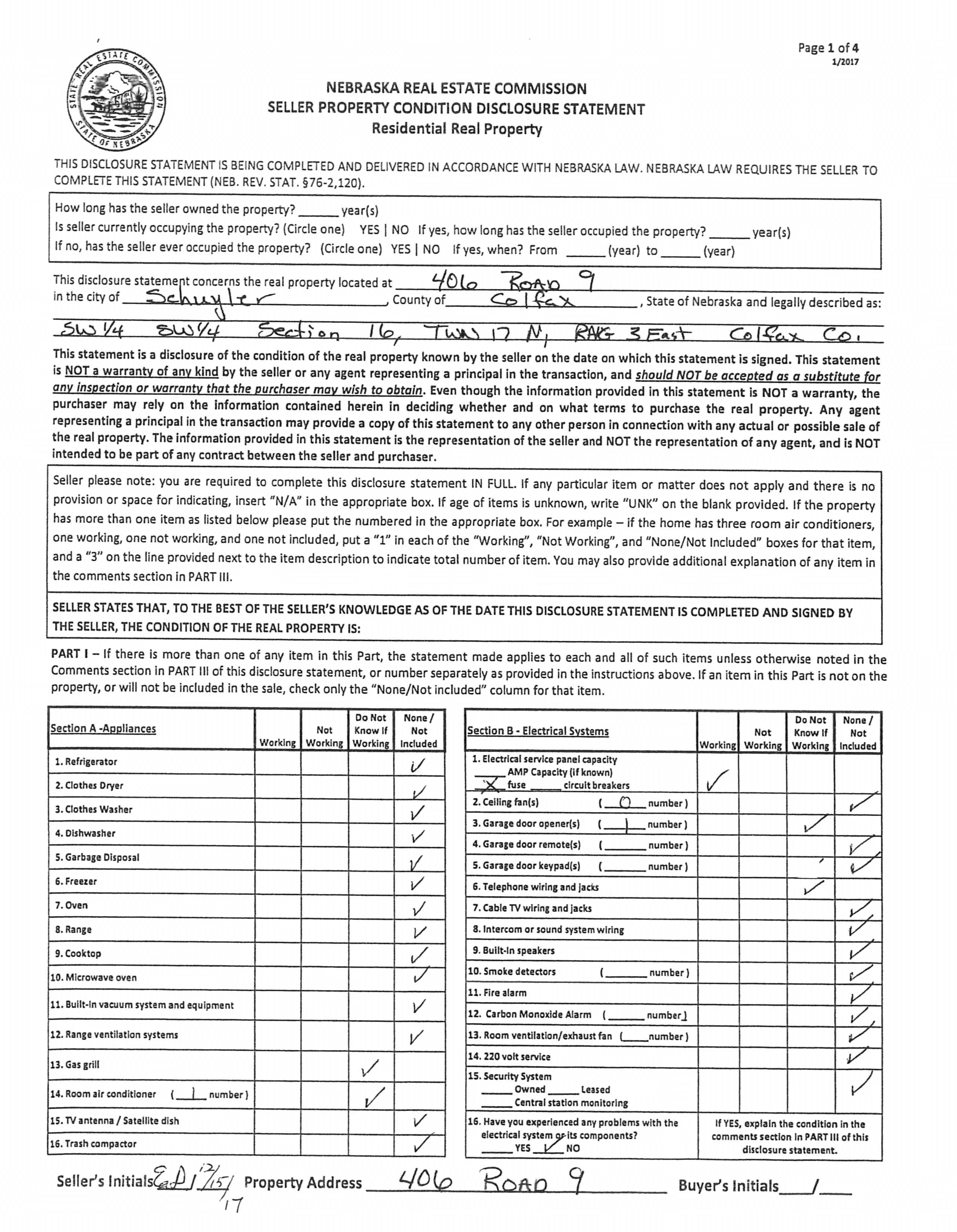
This property is located just West of Schuyler Nebraska.  It is a level gravity irrigated farm with improvements and has good access via gravel county roads. 

LOCATION:

The farm is located two miles West of Schuyler

PROPERTY HIGHLIGHTS

  • Improved 39 Acres

  • Level

  • Irrigated

Land Data

  • LAND: 39 +/- acres: 33.65 acres Irrigated

  • FSA: 37.16 Crop acres Corn 33.5 acres 126 Bushel Corn yield Soybean 0.1 acres 37 Bushel yield

  • TAXES: 2017 taxes to be paid by the Seller = $ 4,187.86

  • LOCATION: 1 mile West and 1 mile South of Schuyler County Road Intersection (9, D)

  • IRRIGATION EQUIPMENT: Duncan belt drive with Lincoln Electric Motor. (the pipe is owned by the tenant)

  • IMPROVEMENTS: Dwelling, Two car Garage, Quonset

Auction Terms

  • 20% Down payment on day of auction with signing a purchase agreement. Balance due on or before February 23, 2018

  • Full possession March 1, 2018.

  • P.R. Warranty Deed to be furnished by Seller.

  • To be sold subject to 2017 crop lease, and free and clear of all encumbrances

  • The Seller to pay the 2017 taxes.

  • Title Insurance with the cost of the owners policy to be shared equally between Buyer and Seller.

  • All Farm Service Agency (FSA) data is believed to be reliable. The seller does not warranty any final base determinations.

  • The sale is not subject to the Buyer’s ability to obtain financing.

  • The Seller will not be providing a survey of the property.

  • The Buyer to sign a purchase agreement at the conclusion of the auction.

GALLERY

soldSage Merritt