318 D ST - Schuyler


Sale Pending! | Listing Price $ 455,000.00 | Schuyler


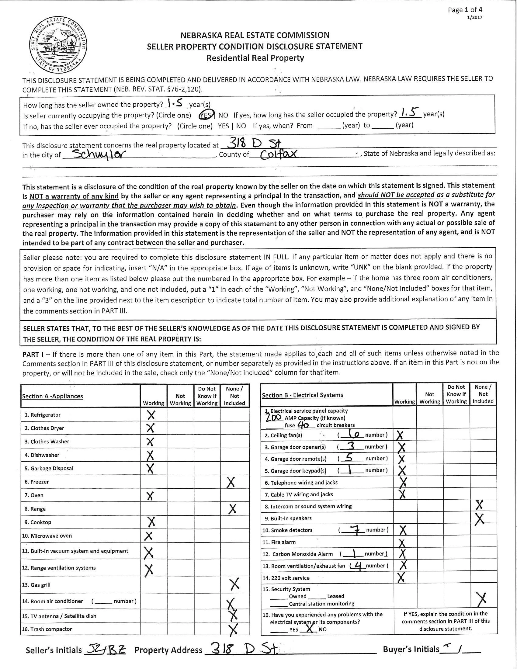
Maps & Documents

Description:

This home has it all!   Some of the features are three finished bedrooms, one unfinished bedroom, sitting/play room, formal dining room, master bath suite with his and her closets, wet bar, main floor laundry, pantry, Corian counters, three car garage, deck and much more.  This really is a must-see home. The back yard features a nice storage shed and underground lawn sprinklers. Call listing agent Chris Langemeier at 402-352-2494 today.

The house is in the flood plain.

Features:

  • Three+ Bedrooms

  • Full basement

  • Lawn sprinklers

  • Storage shed

  • Wet Bar

  • Central Vac

  • Main Floor Laundry

  • Heated Garage

2023 Taxes: $ 7,405.86

Gallery