303 East 9th St - Schuyler


SOLD | Listing Price $94,500.00 | Schuyler


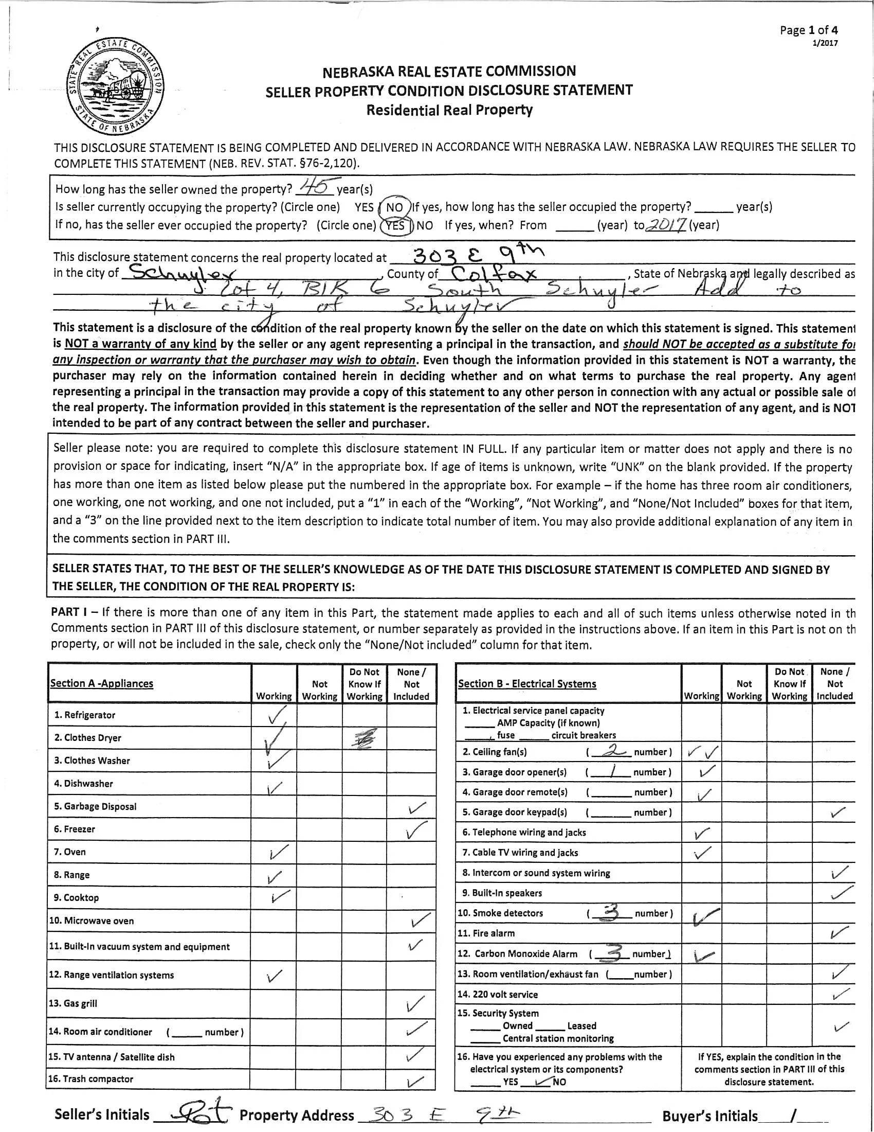
Maps & Documents

Description:

Wow this home has the space for your needs.  With five bedrooms, two bath, main floor laundry, dining room, living room and parlor there is room for all your stuff.  You say that's not enough then put some in the basement.

The house is in the flood plain.

Features:

  • Five Bedrooms

  • Two Bathrooms

  • Main floor laundry

  • Is in the flood plain

Taxes: $ 1,822.36

Gallery

soldSage Merritt