213 Meadow Ln, Schuyler "SOLD"


$135,000.00      I     0.25 ACRES     I     213 Meadow Ln, Schuyler


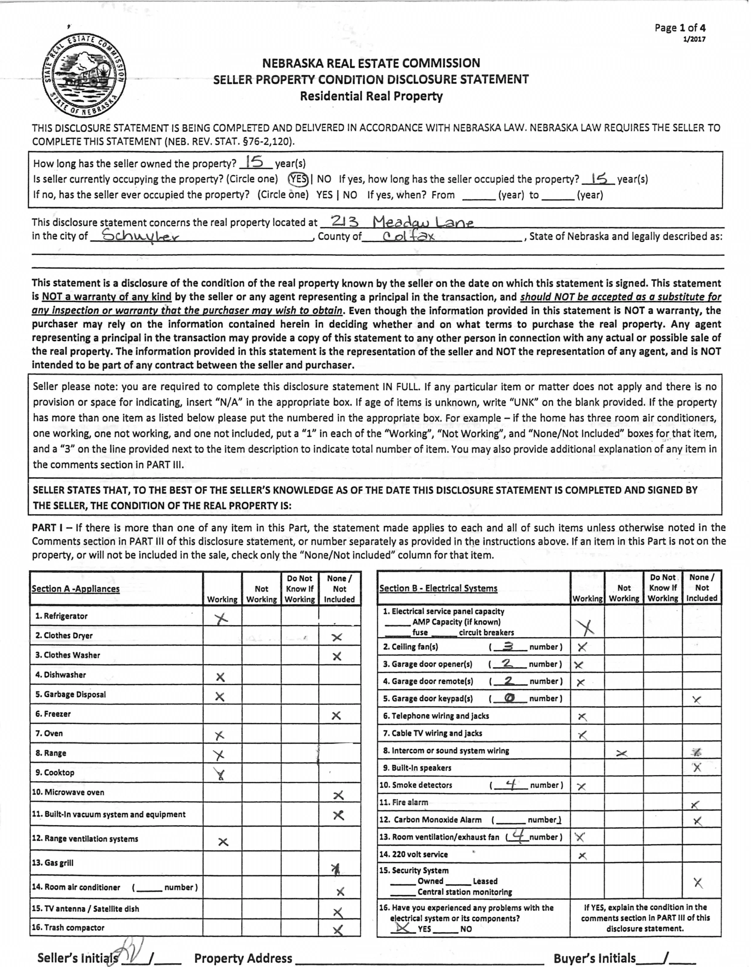
Property Documents & Maps

This home is got the usable space for a large family.  It has three bedrooms on the main floor and more rooms down stairs with a large family room.  Nice sized yard and this is a must see to appreciate it’s space.  Give one of our agents a call today to see it!

PROPERTY HIGHLIGHTS

  • Three ++ Bedrooms

  • Finished Basement

  • Legal: Lot 6, Block C Parkview Addition to the city of Schuyler

Taxes: $2,190.16 (2016)

GALLERY

soldSage Merritt