203 East 8th Street — Schuyler, Nebraska


SALE PENDING! | Asking Price $120,000 | Schuyler


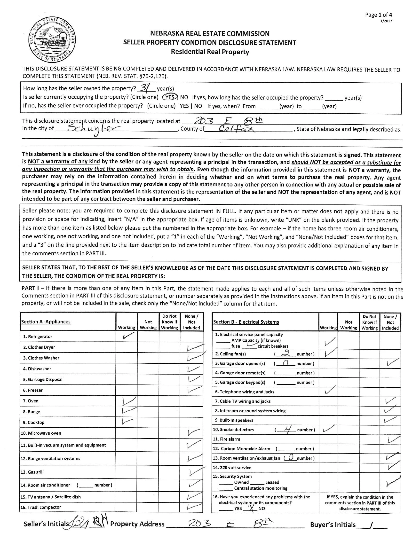
Maps & Documents

Description:

This Two-story five-bedroom home with a partial basement is a ready for you to call this home.

Features:

  • Five Bedrooms

  • Part Basement

  • One Car Garage

  • Large Lot

  • Is in the flood plain

Taxes: $

Gallery:

soldSage Merritt