1707 F Street — Schuyler, Nebraska


Sold! | Listing Price $154,000.00 | Schuyler


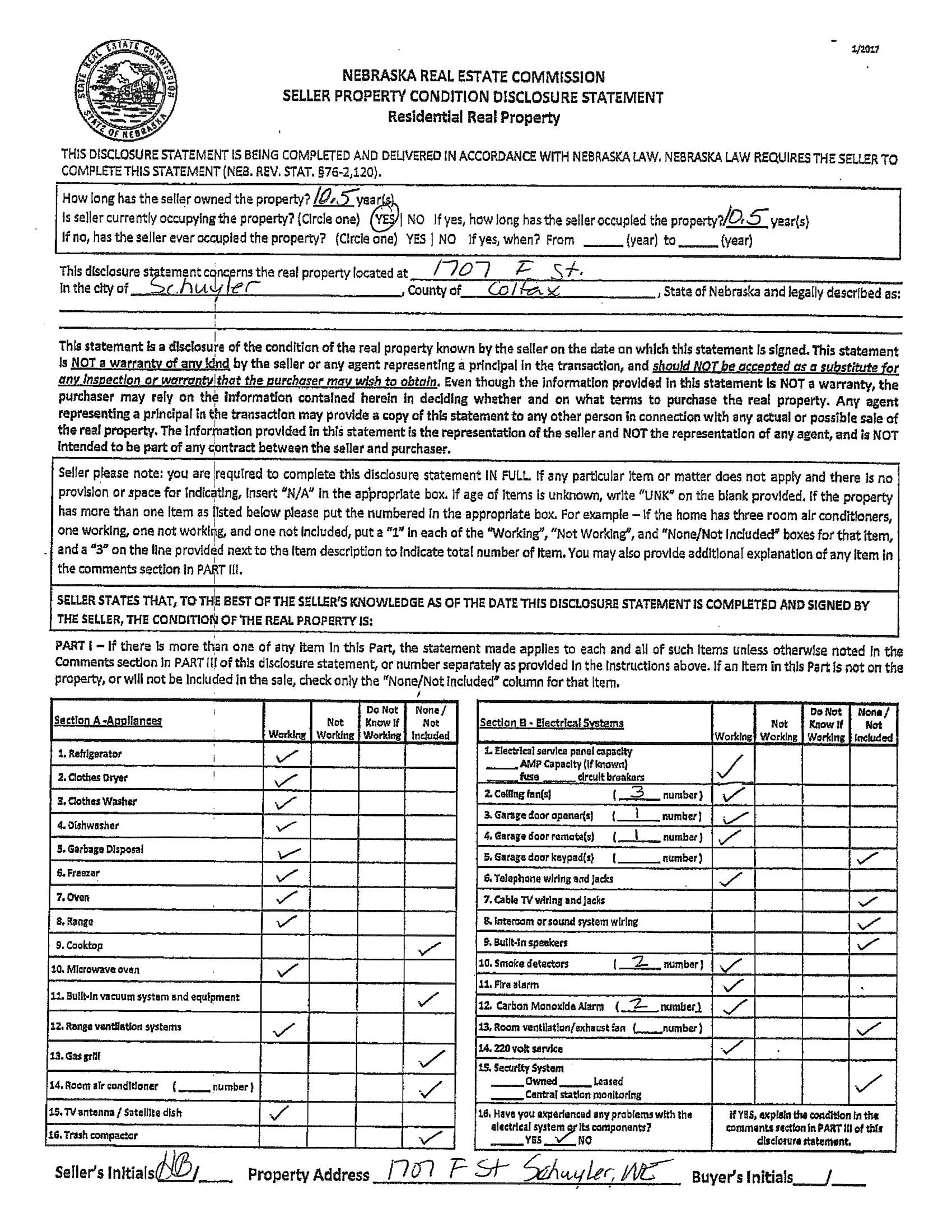
Maps & Documents

Description:

This three-bedroom ranch home is move in ready.  Featuring a large dinning room, three bedrooms, full finished basement, spacious fenced yard with shade trees, storage shed, lawn sprinklers and seamless gutters.  The windows have been replaced, updated floor coverings and paint.  This would make you a very nice home.

The house is NOT in the flood plain.

Features:

  • Three Bedrooms

  • Updated Kitchen

  • Full Basement

  • Newer Windows

  • Lawn Sprinklers

  • Fenced Yard

Taxes: $ 1,722.56

Gallery

soldSage Merritt