Saunders County Acreage

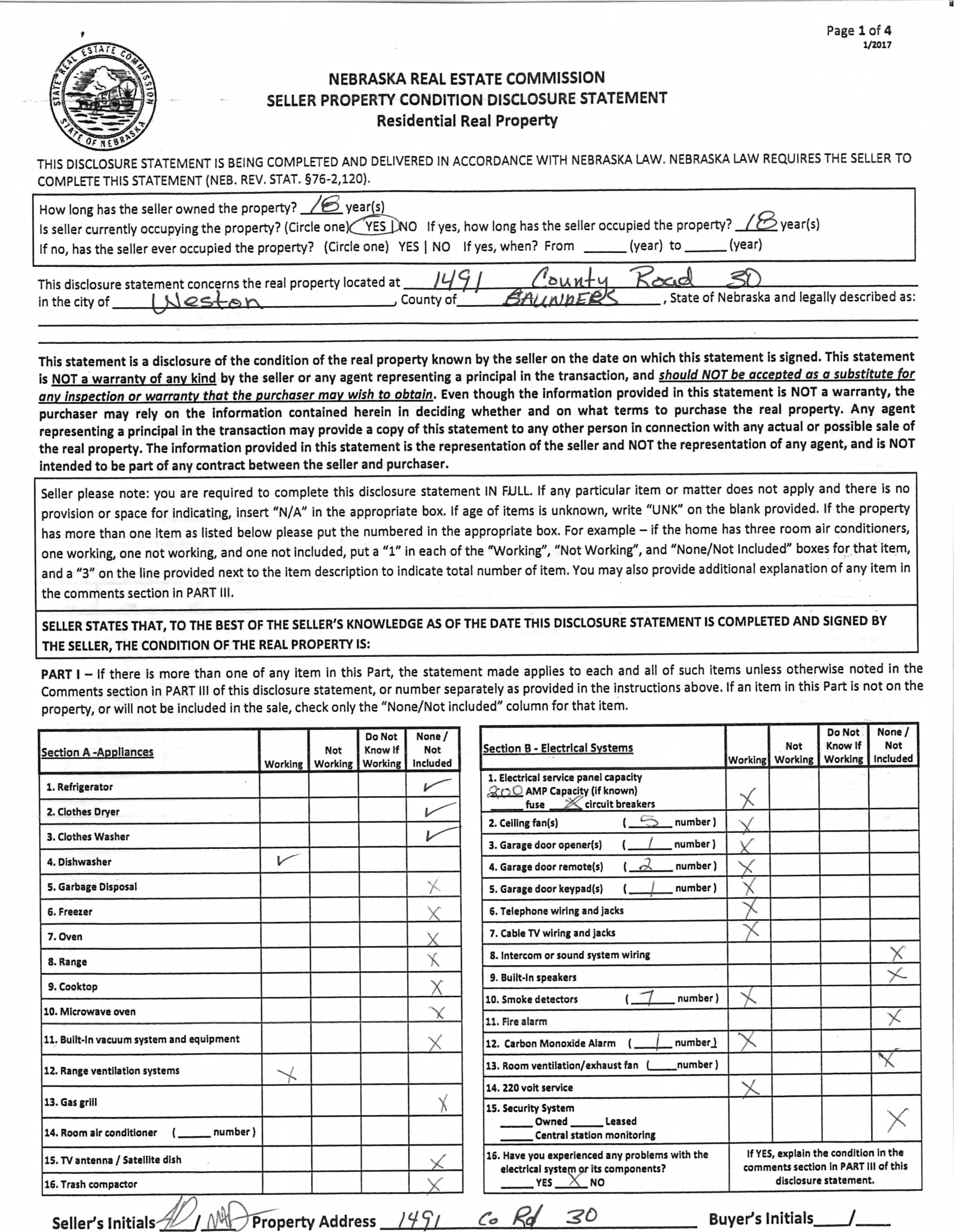
1491 County Road 30 - Weston


SOLD! $400,000.00 | 11.01 Acres |  Acreage


Property Maps & Documents

Description:

This property features a 5226+ square foot ranch style home sitting on 11 acres.  Featuring 4 bedrooms, 3 Baths, nine-foot ceilings, main floor utilities, and a walk out unfinished basement.   The 11 acres has trees a small pond and outbuildings.  All of this and just a mile off paved highway 92.   This is worth the time to come out and enjoy the country life!

There is more land available if needed see the 29 acre listing.

Property Highlights

  • 2613 SqFt Main Floor

  • 4+ Bedrooms

  • Wood Burning Stove

  • 2613 Sqft Walk out basement

  • 11 Acres

  • Jacuzzi Tub

Taxes: $ 2,758.74

Location:

Seven miles west of Weston, Nebraska or 2 miles west and 1 mile north of highway 79 & 92 intersections.

GALLERY

soldSage Merritt