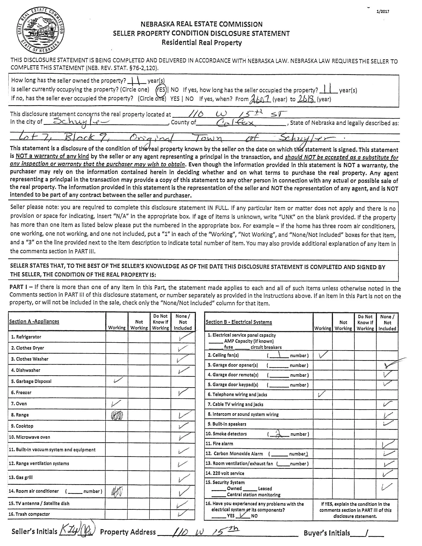
110 West 15th Street — Schuyler, Nebraska


SOLD! | Listing Price $110,000.00 | Schuyler


Maps & Documents

Description:

This ranch style home features two bedrooms, full  basement, fenced yard on a dead end street.  The two car garage has been enclosed for additional living space.

The house is NOT in the flood plain.

Features:

  • Two Bedrooms

  • Full Basement

  • Fenced Backyard

  • Is NOT in the flood plain

Taxes: $1,364.46

Gallery:

soldSage Merritt